Москва,
Обзор№ - 2395
| Стоимость | 10 168 200 |
|---|---|
| Название ЖК | ЖК «ЭкоБунино» |
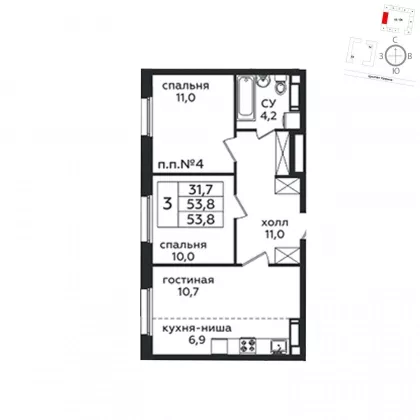
| Площадь, кв.м. | 53.8 |
| Жилая площадь | 31.7 |
| Площадь кухни, кв.м. | 6.9 |
| Комнат в квартире | 3 |
| Этаж | 2 |
| Этажность | 16 |
| Идентификатор корпуса жилого комплекса в базе Яндекса | 2798261 |
Адрес
| Населенный пункт | Москва |
|---|
Продается 3-комнатная квартира общей площадью 53.8 кв.м., на 2 этаже. Жилой комплекс ЖК "ЭкоБунино" располагается по адресу г Москва, поселение Сосенское, деревня Столбово, тер СНТ Рассвет. Полное завершение строительства намечено на IV квартал 2024 года.
Продается просторная 3-комнатная квартира площадью 65.6 кв. метров в зелёном районе Новой Москвы, всего в 10 минутах пути от станции метро «Тёплый Cтан».
Квартира расположена на 5 этаже, корпус 4, в современном ЖК «Эко Бунино» от ГК «МИЦ». Разнообразные планировки, полезные метры, 2 вида отделки. Прямая продажа от застройщика.
Живите с удовольствием!
ЖК «Эко Бунино» это 19 монолитных домов окруженные с трех сторон густыми лесопарками и расположенные вдоль живописной береговой линии реки Сосенки.
На территории комплекса будут построены 2 школы, 3 детских сада, и паркинги. На первых этажах корпусов разместятся: магазины, кафе, салоны красоты, отделения банков и многое другое.
Расположение
Жилой комплекс расположен в Новомосковском АО г. Москвы, в поселении Сосенское, рядом с деревней Ямонтово.
Расстояние до МКАД всего 6,5 км. Всего за 10 минут на машине можно добраться до станции м. «Тёплый Cтан» и за 15 минут до станции м. «Бунинская аллея».
В 2019 году планирует начать работу станция «Столбово», расположенная в 15 минутах от комплекса.

















