Обзор№ - 8720Стоимость 6 501 450
Название ЖК Jaanila Drive Площадь, кв.м. 29.22 Жилая площадь 12.7 Площадь кухни, кв.м. 6.98 Комнат в квартире 1 Этаж 6 Этажность 11 Материал стен Панельный Ремонт Черновая отделка
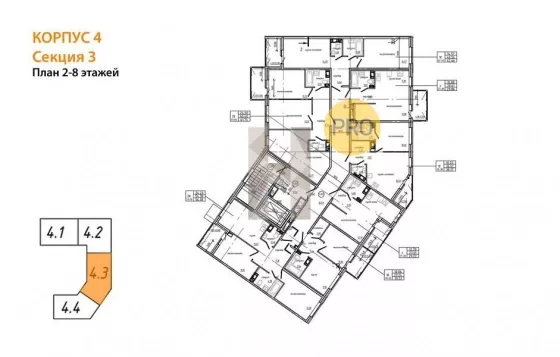
Студия: 29,22 кв.м., 6 этаж в комплексе Jaanila Drive, 4 очередь, корп.4, сдача: 4кв. , этажей: 11, адрес Янино-1 п., , Застройщик: Ленстройтрест.
Строящийся жилой комплекс – место, где гармонично сочетаются разные стили жизни. Пять очередей строительства – пять возможностей выбрать лучший вариант для себя. Кварталы объединены единой концепцией проекта, подразумевающей формирование новой жилой среды и общую, находящуюся в распоряжении каждого жителя территорию. При этом каждый квартал будет обладать неповторимой индивидуальностью.
Микрорайон расположен на границе Санкт-Петербурга и Всеволожского района, до центра города – 15 минут на автомобиле, до ближайшего лесопарка – столько же минут пешком. Попав сюда, каждый сможет ощутить спокойствие и безопасность европейского городка, где не принято спешить, но все всё успевают. Эстетика, уют и удобство соединятся здесь, чтобы сделать жителей чуть счастливее всех остальных.
Городские жители понимают – здоровый образ жизни и активный отдых необходимы при современном темпе жизни! Жителям данного жилого комплекса, чтобы заняться любимым видом спорта будет достаточно просто встать с дивана! Действительно, когда круглый год под окнами спортивный комплекс под открытым небом, нет нужды тратить время на дорогу – всё зависит от Ваших желаний. А прогулочная зона, которая будет проходить через всю территорию – обязательно станет любимым местом отдыха наших жителей.
Дворы закрыты от машин и посторонних. Доступ во дворы осуществляется по электронному ключу жильца. Территория квартала (в том числе, паркинги, детские и спортивные площадки, а также входные группы и лифтовые холлы домов) находится под постоянным видеонаблюдением. Территория будет благоустроена: детские и спортивные площадки, ландшафтный дизайн.
На территории жилого квартала будут три детских сада. Два из них будут государственными, а один планируется сделать частным.
Предусмотрена своя инфраструктура: продуктовые магазины и кафе, аптеки и кабинеты семейных врачей, банк и книжный магазин, хозтовары и ремонт техники и т. д.Расположение
Важно! На карте не всегда указано точное местоположение. Более точную информацию можно узнать у менеджера,
разместившего объект
Обзор№ - 8720
| Стоимость | 6 501 450 |
|---|---|
| Название ЖК | Jaanila Drive |
| Площадь, кв.м. | 29.22 |
| Жилая площадь | 12.7 |
| Площадь кухни, кв.м. | 6.98 |
| Комнат в квартире | 1 |
| Этаж | 6 |
| Этажность | 11 |
| Материал стен | Панельный |
| Ремонт | Черновая отделка |
Студия: 29,22 кв.м., 6 этаж в комплексе Jaanila Drive, 4 очередь, корп.4, сдача: 4кв. , этажей: 11, адрес Янино-1 п., , Застройщик: Ленстройтрест.
Строящийся жилой комплекс – место, где гармонично сочетаются разные стили жизни. Пять очередей строительства – пять возможностей выбрать лучший вариант для себя. Кварталы объединены единой концепцией проекта, подразумевающей формирование новой жилой среды и общую, находящуюся в распоряжении каждого жителя территорию. При этом каждый квартал будет обладать неповторимой индивидуальностью.
Микрорайон расположен на границе Санкт-Петербурга и Всеволожского района, до центра города – 15 минут на автомобиле, до ближайшего лесопарка – столько же минут пешком. Попав сюда, каждый сможет ощутить спокойствие и безопасность европейского городка, где не принято спешить, но все всё успевают. Эстетика, уют и удобство соединятся здесь, чтобы сделать жителей чуть счастливее всех остальных.
Городские жители понимают – здоровый образ жизни и активный отдых необходимы при современном темпе жизни! Жителям данного жилого комплекса, чтобы заняться любимым видом спорта будет достаточно просто встать с дивана! Действительно, когда круглый год под окнами спортивный комплекс под открытым небом, нет нужды тратить время на дорогу – всё зависит от Ваших желаний. А прогулочная зона, которая будет проходить через всю территорию – обязательно станет любимым местом отдыха наших жителей.
Дворы закрыты от машин и посторонних. Доступ во дворы осуществляется по электронному ключу жильца. Территория квартала (в том числе, паркинги, детские и спортивные площадки, а также входные группы и лифтовые холлы домов) находится под постоянным видеонаблюдением. Территория будет благоустроена: детские и спортивные площадки, ландшафтный дизайн.
На территории жилого квартала будут три детских сада. Два из них будут государственными, а один планируется сделать частным.
Предусмотрена своя инфраструктура: продуктовые магазины и кафе, аптеки и кабинеты семейных врачей, банк и книжный магазин, хозтовары и ремонт техники и т. д.

















