Обзор№ - 8046Стоимость 9 991 591
Название ЖК БелАрт Площадь, кв.м. 34.34 Жилая площадь 12.56 Площадь кухни, кв.м. 10.4 Комнат в квартире 1 Этаж 2 Этажность 23 Материал стен Кирпич Ремонт Предчистовая
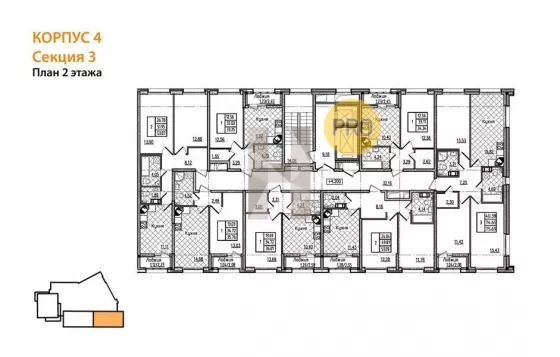
Квартира: 1 к 34,34 кв.м., 2 этаж в комплексе БелАрт, 4 очередь, корп.4, сдача: 2кв. , этажей: 23, адрес Полюстровский пр., , Застройщик: РосСтройИнвест.
Комплекс расположен на границе двух районов: Калининского и Выборгского, вблизи станции метро «Лесная».
Транспортная доступность: 10 мин до КАД, 15 мин до ЗСД.
В шаговой доступности находятся 5 детских садов, 5 государственных школ, 3 объекта здравоохранения, а также многочисленные организации дополнительного образования, спортивные клубы и секции, бассейн и теннисный клуб, детская филармония.
В ближайших окрестностях раскинулось несколько зеленых зон: совсем рядом находится небольшой сад Александра Матросова, чуть дальше — Полюстровский парк, а через дорогу от него — огромный парк Лесотехнической Академии. В районе также есть небольшие скверы и сады.
Двухсторонняя входная группа, колясочные, велосипедные на 1-м этаже в каждом подъезде, короб для хранения уличных игрушек.
Гостевой санузел в каждой парадной, подвод воды, чтобы помыть обувь, лапы домашних питомцев, колеса велосипедов и колясок.
Мусоросборные камеры расположены на 1 этаже в каждой парадной, имеют обособленные входы; устройство мусоропровода в жилых корпусах не предусматривается.
Закрытая безопасная территория всего комплекса, дворы без машин: подземный паркинг, а также небольшие открытые парковки, вынесенные к внешним границам участка, освобождают дворы и улицы, которые отданы пешеходам. Безопасность жителей на территории: при входе в подъезды и паркинг обеспечивают система контроля доступа и система охранного видеонаблюдения.
В результате зонирования придомовой территории каждый из корпусов имеет собственное пространство двора, при этом все дома связаны общими пешеходными маршрутами.
Детские площадки различаются по возрасту и типу активности, разделение спортивных площадок и зон для уединённого общения создают комфортные условия для различного времяпрепровождения.
Ландшафт оформлен искусственным холмистым рельефом и группами вечнозелёных растений.
Проектом предусмотрены офисные помещения, в которых появится собственная инфраструктура комплекса: химчистка, аптека, лавка свежих продуктов, атмосферная кофейня или пекарня.
Отапливаемый охраняемый паркинг с доступом на лифте из каждой парадной и любого этажа.Расположение
Важно! На карте не всегда указано точное местоположение. Более точную информацию можно узнать у менеджера,
разместившего объект
Обзор№ - 8046
| Стоимость | 9 991 591 |
|---|---|
| Название ЖК | БелАрт |
| Площадь, кв.м. | 34.34 |
| Жилая площадь | 12.56 |
| Площадь кухни, кв.м. | 10.4 |
| Комнат в квартире | 1 |
| Этаж | 2 |
| Этажность | 23 |
| Материал стен | Кирпич |
| Ремонт | Предчистовая |
Квартира: 1 к 34,34 кв.м., 2 этаж в комплексе БелАрт, 4 очередь, корп.4, сдача: 2кв. , этажей: 23, адрес Полюстровский пр., , Застройщик: РосСтройИнвест.
Комплекс расположен на границе двух районов: Калининского и Выборгского, вблизи станции метро «Лесная».
Транспортная доступность: 10 мин до КАД, 15 мин до ЗСД.
В шаговой доступности находятся 5 детских садов, 5 государственных школ, 3 объекта здравоохранения, а также многочисленные организации дополнительного образования, спортивные клубы и секции, бассейн и теннисный клуб, детская филармония.
В ближайших окрестностях раскинулось несколько зеленых зон: совсем рядом находится небольшой сад Александра Матросова, чуть дальше — Полюстровский парк, а через дорогу от него — огромный парк Лесотехнической Академии. В районе также есть небольшие скверы и сады.
Двухсторонняя входная группа, колясочные, велосипедные на 1-м этаже в каждом подъезде, короб для хранения уличных игрушек.
Гостевой санузел в каждой парадной, подвод воды, чтобы помыть обувь, лапы домашних питомцев, колеса велосипедов и колясок.
Мусоросборные камеры расположены на 1 этаже в каждой парадной, имеют обособленные входы; устройство мусоропровода в жилых корпусах не предусматривается.
Закрытая безопасная территория всего комплекса, дворы без машин: подземный паркинг, а также небольшие открытые парковки, вынесенные к внешним границам участка, освобождают дворы и улицы, которые отданы пешеходам. Безопасность жителей на территории: при входе в подъезды и паркинг обеспечивают система контроля доступа и система охранного видеонаблюдения.
В результате зонирования придомовой территории каждый из корпусов имеет собственное пространство двора, при этом все дома связаны общими пешеходными маршрутами.
Детские площадки различаются по возрасту и типу активности, разделение спортивных площадок и зон для уединённого общения создают комфортные условия для различного времяпрепровождения.
Ландшафт оформлен искусственным холмистым рельефом и группами вечнозелёных растений.
Проектом предусмотрены офисные помещения, в которых появится собственная инфраструктура комплекса: химчистка, аптека, лавка свежих продуктов, атмосферная кофейня или пекарня.
Отапливаемый охраняемый паркинг с доступом на лифте из каждой парадной и любого этажа.

















