Обзор№ - 7218Стоимость 31 449 462
Название ЖК МИРЪ Площадь, кв.м. 74.6 Жилая площадь 30.6 Площадь кухни, кв.м. 20.8 Комнат в квартире 2 Этаж 4 Этажность 9 Материал стен Кирпич Ремонт Черновая отделка
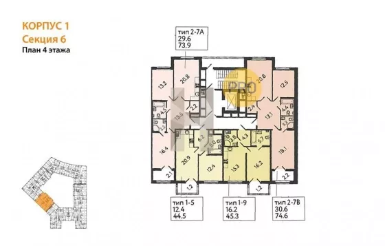
Квартира: 2 к 74,60 кв.м., 4 этаж в комплексе МИРЪ, 1 очередь, корп.1, сдача: 4кв. , этажей: 9, адрес Миргородская ул., д. 1/А, Застройщик: RBI.
Клубный дом расположен в историческом центре города на Миргородской улице, в двух минутах от Невского проспекта. Здесь сосредоточена деловая, историческая и культурная активность города. При этом дом удален от самой шумной его части и Московского вокзала. Это позволяет жильцам комплекса чувствовать себя комфортно и вести размеренный образ жизни.
Для детей в ближайшем расположении современные и частные детские сады, заслужившие авторитет гимназии. Для их родителей - солидные деловые центры и модные бутики.
В каждой парадной предусмотрена просторная зона для временного хранения колясок. А для велосипедов предусмотрены велопарковки на территории. При проектировании поддерживается принципа «безбарьерной среды», это значит, что количество бордюров и ступенек сведено к минимуму.
Собственный фитнес-зал в доме с современным оборудованием, предназначенный только для жителей дома, позволит сэкономить время и насладиться тренировками в любое время дня.
Огромные панорамные окна создадут рабочую атмосферу и наполнят пространство естественным светом.
Внутренний двор утопает в зелени, а для отдыха на свежем воздухе предусмотрены уличные деревянные шезлонги, пространство для дружеских встреч под воздушным навесом.
Композиционно комплекс состоит из двух корпусов: разновысотного (6-7-8-9 этажей) на 243 квартиры и небольшого 6-этажного на 20 квартир. Они объединены между собой парадной аркой и формируют закрытый контур внутреннего двора.
Из квартир открываются живописные виды на Феодоровский собор, знаменитую «петербургскую кремлёвскую стену», исторический центр и новый квартал бизнес-класса.Расположение
Важно! На карте не всегда указано точное местоположение. Более точную информацию можно узнать у менеджера,
разместившего объект
Обзор№ - 7218
| Стоимость | 31 449 462 |
|---|---|
| Название ЖК | МИРЪ |
| Площадь, кв.м. | 74.6 |
| Жилая площадь | 30.6 |
| Площадь кухни, кв.м. | 20.8 |
| Комнат в квартире | 2 |
| Этаж | 4 |
| Этажность | 9 |
| Материал стен | Кирпич |
| Ремонт | Черновая отделка |
Квартира: 2 к 74,60 кв.м., 4 этаж в комплексе МИРЪ, 1 очередь, корп.1, сдача: 4кв. , этажей: 9, адрес Миргородская ул., д. 1/А, Застройщик: RBI.
Клубный дом расположен в историческом центре города на Миргородской улице, в двух минутах от Невского проспекта. Здесь сосредоточена деловая, историческая и культурная активность города. При этом дом удален от самой шумной его части и Московского вокзала. Это позволяет жильцам комплекса чувствовать себя комфортно и вести размеренный образ жизни.
Для детей в ближайшем расположении современные и частные детские сады, заслужившие авторитет гимназии. Для их родителей - солидные деловые центры и модные бутики.
В каждой парадной предусмотрена просторная зона для временного хранения колясок. А для велосипедов предусмотрены велопарковки на территории. При проектировании поддерживается принципа «безбарьерной среды», это значит, что количество бордюров и ступенек сведено к минимуму.
Собственный фитнес-зал в доме с современным оборудованием, предназначенный только для жителей дома, позволит сэкономить время и насладиться тренировками в любое время дня.
Огромные панорамные окна создадут рабочую атмосферу и наполнят пространство естественным светом.
Внутренний двор утопает в зелени, а для отдыха на свежем воздухе предусмотрены уличные деревянные шезлонги, пространство для дружеских встреч под воздушным навесом.
Композиционно комплекс состоит из двух корпусов: разновысотного (6-7-8-9 этажей) на 243 квартиры и небольшого 6-этажного на 20 квартир. Они объединены между собой парадной аркой и формируют закрытый контур внутреннего двора.
Из квартир открываются живописные виды на Феодоровский собор, знаменитую «петербургскую кремлёвскую стену», исторический центр и новый квартал бизнес-класса.

















