Обзор№ - 5744Стоимость 19 073 375
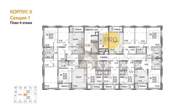
Название ЖК Тайм Сквер Площадь, кв.м. 95.6 Жилая площадь 46.8 Площадь кухни, кв.м. 13.8 Комнат в квартире 3 Этаж 4 Этажность 13 Материал стен Кирпич Ремонт Предчистовая
Квартира: 3 к 95,60 кв.м., 4 этаж в комплексе Тайм Сквер, 1 очередь, корп.0, сдача: 2кв. , этажей: 13, адрес Глухарская ул., , Застройщик: РосСтройИнвест.
Жилой комплекс расположен в современном Приморском районе с развитой транспортной и социальной инфраструктурой, основной объем возводимого жилья – в среднем ценовом диапазоне, комфорт класса. Район продолжает динамично развиваться.
В непосредственной близости от участка расположены зеленые зоны: Изотовский сквер и Юнтоловский лесопарк – государственный природный заказник. Благодаря близости к заливу и большому количеству зеленых зон Приморский район входит в число лидеров по чистоте воздуха. Из окон жилого комплекса будет открываться виды на Юнтоловский лесопарк, а для того чтобы добраться до Финского залива, потребуется примерно15 минут на машине. Наличие рядом выездов на КАД и ЗСД позволит быстро добраться в любую точку города.
В ЖК широкий выбор квартир с европланировками, есть уникальные лоты с увеличенным остеклением, высокими потолками (от 3 м.) и видом на Юнтоловский лесопарк и «Лахта Центр.
За счет средней этажности (комплекс состоит из 13-этажных домов) и грамотного расположения корпусов формируется комфортная жилая среда.
Закрытый от посторонних и машин благоустроенный двор – современная концепция, обеспечивающая безопасность и уют. Для автомобилистов предусмотрен встроенно-пристроенный паркинг.
Инфраструктура района хорошо развита. В непосредственной близости от жилого комплекса – торговые центры, места для отдыха и развития, социальные и медицинские учреждения. На первых этажах спроектированы коммерческие помещения для торгово-бытовой инфраструктуры.Расположение
Важно! На карте не всегда указано точное местоположение. Более точную информацию можно узнать у менеджера,
разместившего объект
Обзор№ - 5744
| Стоимость | 19 073 375 |
|---|---|
| Название ЖК | Тайм Сквер |
| Площадь, кв.м. | 95.6 |
| Жилая площадь | 46.8 |
| Площадь кухни, кв.м. | 13.8 |
| Комнат в квартире | 3 |
| Этаж | 4 |
| Этажность | 13 |
| Материал стен | Кирпич |
| Ремонт | Предчистовая |
Квартира: 3 к 95,60 кв.м., 4 этаж в комплексе Тайм Сквер, 1 очередь, корп.0, сдача: 2кв. , этажей: 13, адрес Глухарская ул., , Застройщик: РосСтройИнвест.
Жилой комплекс расположен в современном Приморском районе с развитой транспортной и социальной инфраструктурой, основной объем возводимого жилья – в среднем ценовом диапазоне, комфорт класса. Район продолжает динамично развиваться.
В непосредственной близости от участка расположены зеленые зоны: Изотовский сквер и Юнтоловский лесопарк – государственный природный заказник. Благодаря близости к заливу и большому количеству зеленых зон Приморский район входит в число лидеров по чистоте воздуха. Из окон жилого комплекса будет открываться виды на Юнтоловский лесопарк, а для того чтобы добраться до Финского залива, потребуется примерно15 минут на машине. Наличие рядом выездов на КАД и ЗСД позволит быстро добраться в любую точку города.
В ЖК широкий выбор квартир с европланировками, есть уникальные лоты с увеличенным остеклением, высокими потолками (от 3 м.) и видом на Юнтоловский лесопарк и «Лахта Центр.
За счет средней этажности (комплекс состоит из 13-этажных домов) и грамотного расположения корпусов формируется комфортная жилая среда.
Закрытый от посторонних и машин благоустроенный двор – современная концепция, обеспечивающая безопасность и уют. Для автомобилистов предусмотрен встроенно-пристроенный паркинг.
Инфраструктура района хорошо развита. В непосредственной близости от жилого комплекса – торговые центры, места для отдыха и развития, социальные и медицинские учреждения. На первых этажах спроектированы коммерческие помещения для торгово-бытовой инфраструктуры.

















