Обзор№ - 16382Стоимость 9 212 096
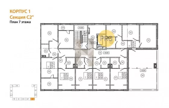
Название ЖК Pixel Площадь, кв.м. 72.02 Жилая площадь 31.88 Площадь кухни, кв.м. 9.13 Комнат в квартире 2 Этаж 7 Этажность 7 Материал стен Панельный Ремонт Предчистовая
Квартира: 2 к 72,02 кв.м., 7 этаж в комплексе Pixel, 1 очередь, корп.1, сдача: 1кв. , этажей: 7, адрес Коммунар г., Железнодорожная ул., , Застройщик: ГК НЭК Холдинг.
Жилой комплекс представляет собой 12 секций разной этажности, от 7 до 8 этажей образующих уютный закрытый двор с детскими площадками и местами для отдыха и занятия спортом. Дом комфорт-класса, который строится в городе Коммунар, ЖК находится в треугольнике дворцово-парковых ансамблей: Павловск, Пушкин и Гатчина. Рядом с комплексом располагаются супермаркеты и аптеки, МФЦ, Сбербанк, Почта, бассейн, церковь, поликлиника, спортивные и развивающие секции.
Комфортный двор с озеленением:
- Уютный двор без машин;
- Площадки для детей разного возраста;
- Спортивные площадки;
- Зоны отдыха и беседки;
Планировочные решения представлены в разных вариантах, начиная от небольших студий до просторных двухкомнатных и трехкомнатных квартир. На последних этажах есть квартиры с террасами, где будет приятно проводить вечера с семьей и друзьями. Для удобства автовладельцев на территории жилого комплекса организована парковка. Остекленные лоджии, высота потолков 2.8 м, выполнение черновой отделки.Расположение
Важно! На карте не всегда указано точное местоположение. Более точную информацию можно узнать у менеджера,
разместившего объект
Обзор№ - 16382
| Стоимость | 9 212 096 |
|---|---|
| Название ЖК | Pixel |
| Площадь, кв.м. | 72.02 |
| Жилая площадь | 31.88 |
| Площадь кухни, кв.м. | 9.13 |
| Комнат в квартире | 2 |
| Этаж | 7 |
| Этажность | 7 |
| Материал стен | Панельный |
| Ремонт | Предчистовая |
Квартира: 2 к 72,02 кв.м., 7 этаж в комплексе Pixel, 1 очередь, корп.1, сдача: 1кв. , этажей: 7, адрес Коммунар г., Железнодорожная ул., , Застройщик: ГК НЭК Холдинг.
Жилой комплекс представляет собой 12 секций разной этажности, от 7 до 8 этажей образующих уютный закрытый двор с детскими площадками и местами для отдыха и занятия спортом. Дом комфорт-класса, который строится в городе Коммунар, ЖК находится в треугольнике дворцово-парковых ансамблей: Павловск, Пушкин и Гатчина. Рядом с комплексом располагаются супермаркеты и аптеки, МФЦ, Сбербанк, Почта, бассейн, церковь, поликлиника, спортивные и развивающие секции.
Комфортный двор с озеленением:
- Уютный двор без машин;
- Площадки для детей разного возраста;
- Спортивные площадки;
- Зоны отдыха и беседки;
Планировочные решения представлены в разных вариантах, начиная от небольших студий до просторных двухкомнатных и трехкомнатных квартир. На последних этажах есть квартиры с террасами, где будет приятно проводить вечера с семьей и друзьями. Для удобства автовладельцев на территории жилого комплекса организована парковка. Остекленные лоджии, высота потолков 2.8 м, выполнение черновой отделки.

















