Обзор№ - 15059Стоимость 11 816 437
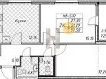
Название ЖК Академик Площадь, кв.м. 52.58 Жилая площадь 27.39 Площадь кухни, кв.м. 12.15 Комнат в квартире 2 Этаж 6 Этажность 12 Материал стен Монолитный Ремонт Предчистовая
Квартира: 2 к 52,58 кв.м., 6 этаж в комплексе Академик, 2 очередь, корп.3, сдача: 3кв. , этажей: 12, адрес Пискаревский пр., , Застройщик: РосСтройИнвест.
Жилой комплекс комфорт-класса расположен в Красногвардейском районе Санкт-Петербурга, на пересечении Пискарёвского проспекта и Ручьёвской дороги. Местоположение является одним из ключевых преимуществ проекта и обеспечивает доступ в любую точку города: КАД, Финляндский вокзал, пригороды: Всеволожск и Токсово.
Красногвардейский район ‒ район с уже сложившейся инфраструктурой. Благодаря удачному расположению и хорошей транспортной доступности жителям комплекса будет доступна вся существующая инфраструктура.
В состав проекта входят три 12-этажные секции, объединенные общим стилобатом, два отдельно стоящих корпуса, а также здание для детского сада на 80 мест и начальной школы на 100 мест. В стилобатной части первой очереди проекта предусмотрен подземный паркинг на 300 мест, на первых этажах разместятся коммерческие помещения.
Доступен большой выбор квартир ‒ от студий до трехкомнатных, в том числе европланировки с просторной кухней-гостиной, а также лоты с мастер-спальнями. Квартиры на верхних этажах (10-м, 11-м и 12-м) имеют увеличенную площадь остекления и более высокие потолки (до 3 метров).
В ЖК предусмотрена закрытая безопасная территория всего комплекса, дворы без машин. Безопасность жителей на территории при входе в подъезды и паркинг обеспечивают система контроля доступа и система охранного видеонаблюдения.
Большое внимание уделено благоустройству придомовой территории: дифференциация детских площадок по возрасту и типу активности, разделение спортивных площадок и зоны для отдыха с прудом. Визуальное разнообразие ландшафта достигнуто за счет искусственного холмистого рельефа и групп вечнозелёных растений.Расположение
Важно! На карте не всегда указано точное местоположение. Более точную информацию можно узнать у менеджера,
разместившего объект
Обзор№ - 15059
| Стоимость | 11 816 437 |
|---|---|
| Название ЖК | Академик |
| Площадь, кв.м. | 52.58 |
| Жилая площадь | 27.39 |
| Площадь кухни, кв.м. | 12.15 |
| Комнат в квартире | 2 |
| Этаж | 6 |
| Этажность | 12 |
| Материал стен | Монолитный |
| Ремонт | Предчистовая |
Квартира: 2 к 52,58 кв.м., 6 этаж в комплексе Академик, 2 очередь, корп.3, сдача: 3кв. , этажей: 12, адрес Пискаревский пр., , Застройщик: РосСтройИнвест.
Жилой комплекс комфорт-класса расположен в Красногвардейском районе Санкт-Петербурга, на пересечении Пискарёвского проспекта и Ручьёвской дороги. Местоположение является одним из ключевых преимуществ проекта и обеспечивает доступ в любую точку города: КАД, Финляндский вокзал, пригороды: Всеволожск и Токсово.
Красногвардейский район ‒ район с уже сложившейся инфраструктурой. Благодаря удачному расположению и хорошей транспортной доступности жителям комплекса будет доступна вся существующая инфраструктура.
В состав проекта входят три 12-этажные секции, объединенные общим стилобатом, два отдельно стоящих корпуса, а также здание для детского сада на 80 мест и начальной школы на 100 мест. В стилобатной части первой очереди проекта предусмотрен подземный паркинг на 300 мест, на первых этажах разместятся коммерческие помещения.
Доступен большой выбор квартир ‒ от студий до трехкомнатных, в том числе европланировки с просторной кухней-гостиной, а также лоты с мастер-спальнями. Квартиры на верхних этажах (10-м, 11-м и 12-м) имеют увеличенную площадь остекления и более высокие потолки (до 3 метров).
В ЖК предусмотрена закрытая безопасная территория всего комплекса, дворы без машин. Безопасность жителей на территории при входе в подъезды и паркинг обеспечивают система контроля доступа и система охранного видеонаблюдения.
Большое внимание уделено благоустройству придомовой территории: дифференциация детских площадок по возрасту и типу активности, разделение спортивных площадок и зоны для отдыха с прудом. Визуальное разнообразие ландшафта достигнуто за счет искусственного холмистого рельефа и групп вечнозелёных растений.

















