Обзор№ - 14522Стоимость 9 159 317
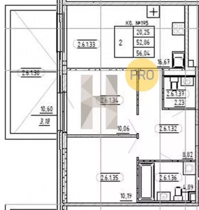
Название ЖК PLUS Пулковский Площадь, кв.м. 56.73 Жилая площадь 20.25 Площадь кухни, кв.м. 16.67 Комнат в квартире 2 Этаж 1 Этажность 5 Материал стен Экспериментальные материалы Ремонт Чистовая
Квартира: 2 к 56,73 кв.м., 1 этаж в комплексе PLUS Пулковский, 1 очередь, корп.2, сдача: 4кв. , этажей: 5, адрес Пулковское шос., , Застройщик: ПСК.
Жилой квартал расположен в престижном Московском районе на пересечении Пулковского и Волхонского шоссе, по которым можно быстро добраться до КАД и до станций метро Московская и Звездная. Поблизости расположены дворцово-парковые ансамбли Пушкина, Павловска, Петергофа, Гатчины, Ломоносова. Поблизости вся торговая и развлекательная инфраструктура: ТК Лето, Outlet Village Pulkovo, Пулково-3, гипермаркеты Лента, Окей, Metro. В доступности социальная инфраструктура: школа на 825 мест с бассейном, 2 детских сада на 220 мест каждый с бассейнами, медицинский центр для взрослых и медицинский центр для детей.
В квартале предусмотрены коммерческие помещения на 1 этажах по периметру, надземный парковочный комплекс, подземный паркинг (для корпусов 17-18 и 29-30) и общественный санузел.
Большая площадь благоустройства с различными сценариями использования: центральная пешеходная аллея, большая событийная площадь в центре квартала, закрытые дворы в концепции «двор без машин». Закрытые дворы предусматривают площадки для маленьких детей, площадки для подростков, площадки для занятия спортом взрослых и площадки для отдыха взрослых, велодорожки на территории квартала и прогулочные маршруты по территории квартала.
В квартале малоэтажная комфортная застройка в 5 этажей. Современная архитектура от одной из самых титулованных архитектурных студий Санкт-Петербурга – «А. Лен». Долговечные современные фасады. Материал фасадов – вентилируемые из керамогранита.
Сквозные парадные группы: возможность подъехать к парадной с внешнего фасада здания, выход в благоустроенный двор из парадной: входы в парадные с уровня земли, парадные с витражным остеклением, помещения для хранения велосипедов и колясок в каждой парадной.
Межквартирные коридоры на этажах: при большом количестве квартир на 1 лестничной клетке, межквартирный коридор делится на 2 части. Спуск лифтов в подземные паркинги (при наличии подземного паркинга).
Высота жилого этажа от 2,7 до 3,5 м. На первых этажах квартиры в патио. В всех квартирах окна высотой до 2 метров.
Планировочные решения квартир:
- функциональные планировки, в которых рационально используются все площади квартиры (нет больших коридоров, спален с излишней площадью, нет больших балконов);
- классические и евро планировки с кухнями гостиными. Преобладание квартир евро формата;
- выделенные места для размещения гардеробных в коридорах;
- места под установку стиральных машин в санузлах;
- квартиры студии с двумя окнами;
- горизонтальная разводка отопления;
- дистанционные приборы учета водоснабжения, теплоснабжения, электричества;
- IP домофония с возможностью дистанционного открытия доступа на территорию и в парадные.Расположение
Важно! На карте не всегда указано точное местоположение. Более точную информацию можно узнать у менеджера,
разместившего объект
Обзор№ - 14522
| Стоимость | 9 159 317 |
|---|---|
| Название ЖК | PLUS Пулковский |
| Площадь, кв.м. | 56.73 |
| Жилая площадь | 20.25 |
| Площадь кухни, кв.м. | 16.67 |
| Комнат в квартире | 2 |
| Этаж | 1 |
| Этажность | 5 |
| Материал стен | Экспериментальные материалы |
| Ремонт | Чистовая |
Квартира: 2 к 56,73 кв.м., 1 этаж в комплексе PLUS Пулковский, 1 очередь, корп.2, сдача: 4кв. , этажей: 5, адрес Пулковское шос., , Застройщик: ПСК.
Жилой квартал расположен в престижном Московском районе на пересечении Пулковского и Волхонского шоссе, по которым можно быстро добраться до КАД и до станций метро Московская и Звездная. Поблизости расположены дворцово-парковые ансамбли Пушкина, Павловска, Петергофа, Гатчины, Ломоносова. Поблизости вся торговая и развлекательная инфраструктура: ТК Лето, Outlet Village Pulkovo, Пулково-3, гипермаркеты Лента, Окей, Metro. В доступности социальная инфраструктура: школа на 825 мест с бассейном, 2 детских сада на 220 мест каждый с бассейнами, медицинский центр для взрослых и медицинский центр для детей.
В квартале предусмотрены коммерческие помещения на 1 этажах по периметру, надземный парковочный комплекс, подземный паркинг (для корпусов 17-18 и 29-30) и общественный санузел.
Большая площадь благоустройства с различными сценариями использования: центральная пешеходная аллея, большая событийная площадь в центре квартала, закрытые дворы в концепции «двор без машин». Закрытые дворы предусматривают площадки для маленьких детей, площадки для подростков, площадки для занятия спортом взрослых и площадки для отдыха взрослых, велодорожки на территории квартала и прогулочные маршруты по территории квартала.
В квартале малоэтажная комфортная застройка в 5 этажей. Современная архитектура от одной из самых титулованных архитектурных студий Санкт-Петербурга – «А. Лен». Долговечные современные фасады. Материал фасадов – вентилируемые из керамогранита.
Сквозные парадные группы: возможность подъехать к парадной с внешнего фасада здания, выход в благоустроенный двор из парадной: входы в парадные с уровня земли, парадные с витражным остеклением, помещения для хранения велосипедов и колясок в каждой парадной.
Межквартирные коридоры на этажах: при большом количестве квартир на 1 лестничной клетке, межквартирный коридор делится на 2 части. Спуск лифтов в подземные паркинги (при наличии подземного паркинга).
Высота жилого этажа от 2,7 до 3,5 м. На первых этажах квартиры в патио. В всех квартирах окна высотой до 2 метров.
Планировочные решения квартир:
- функциональные планировки, в которых рационально используются все площади квартиры (нет больших коридоров, спален с излишней площадью, нет больших балконов);
- классические и евро планировки с кухнями гостиными. Преобладание квартир евро формата;
- выделенные места для размещения гардеробных в коридорах;
- места под установку стиральных машин в санузлах;
- квартиры студии с двумя окнами;
- горизонтальная разводка отопления;
- дистанционные приборы учета водоснабжения, теплоснабжения, электричества;
- IP домофония с возможностью дистанционного открытия доступа на территорию и в парадные.

















