Обзор№ - 12898Стоимость 5 716 966
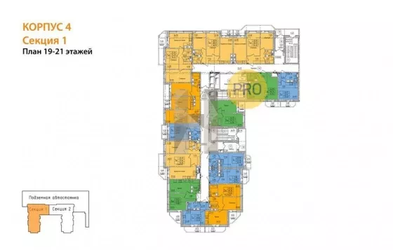
Название ЖК Живи! В Рыбацком Площадь, кв.м. 22.3 Жилая площадь 10 Площадь кухни, кв.м. 5.38 Комнат в квартире 1 Этаж 20 Этажность 23 Материал стен Кирпич Ремонт Чистовая
Студия: 22,30 кв.м., 20 этаж в комплексе Живи! В Рыбацком, 6 очередь, корп.4, сдача: 4кв. , этажей: 23, адрес Славянская ул., , Застройщик: Группа Самолет.
Новостройка возводится в 5 минутах от набережной Невы, из окон открывается впечатляющий вид на воды реки, лесопарки, жилые массивы Питера, выполненные в современном архитектурном стиле.
Во внутреннем дворе создана защищенная, уютная территория с продуманным благоустройством и озеленением, веб камерами, безопасными детскими площадками и зонами отдыха. Короткой стороной корпус обращен к оживленному Советскому проспекту. Для встроенных коммерческих помещений, размещенных в нижних этажах, такое соседство сулит высокую проходимость бизнеса.
Несущие стены возводятся из монолитного железобетона на добротном свайном фундаменте. Отделка фасадов — лицевой кирпич и бетонный камень. Минераловатные плиты «Техноблок» защищают помещения от минусов зимних температур и шума автомагистрали. В парадных будут установлены бесшумные лифты от известных производителей. Отделка холлов, коридоров и тамбуров домов в жилом комплексе выполняется по европейскому дизайну. Современное оформление нежилых помещений невозможно сравнить с отделкой парадных в домах массовых серий.
Проектировщиками предусмотрен поочередный ввод в эксплуатацию 6 этапов застройки, строительство 4 детсадов и 2 общеобразовательных школ. На первых этажах будет развернута внутренняя коммерческая инфраструктура.
Добраться до комплекса можно от станции метро «Рыбацкое» пешком, на маршрутке или автобусе за 10 минут, а также на автомобиле. Рядом с метро располагается ж/д станция. Развязка КАД находится в 4 км.Расположение
Важно! На карте не всегда указано точное местоположение. Более точную информацию можно узнать у менеджера,
разместившего объект
Обзор№ - 12898
| Стоимость | 5 716 966 |
|---|---|
| Название ЖК | Живи! В Рыбацком |
| Площадь, кв.м. | 22.3 |
| Жилая площадь | 10 |
| Площадь кухни, кв.м. | 5.38 |
| Комнат в квартире | 1 |
| Этаж | 20 |
| Этажность | 23 |
| Материал стен | Кирпич |
| Ремонт | Чистовая |
Студия: 22,30 кв.м., 20 этаж в комплексе Живи! В Рыбацком, 6 очередь, корп.4, сдача: 4кв. , этажей: 23, адрес Славянская ул., , Застройщик: Группа Самолет.
Новостройка возводится в 5 минутах от набережной Невы, из окон открывается впечатляющий вид на воды реки, лесопарки, жилые массивы Питера, выполненные в современном архитектурном стиле.
Во внутреннем дворе создана защищенная, уютная территория с продуманным благоустройством и озеленением, веб камерами, безопасными детскими площадками и зонами отдыха. Короткой стороной корпус обращен к оживленному Советскому проспекту. Для встроенных коммерческих помещений, размещенных в нижних этажах, такое соседство сулит высокую проходимость бизнеса.
Несущие стены возводятся из монолитного железобетона на добротном свайном фундаменте. Отделка фасадов — лицевой кирпич и бетонный камень. Минераловатные плиты «Техноблок» защищают помещения от минусов зимних температур и шума автомагистрали. В парадных будут установлены бесшумные лифты от известных производителей. Отделка холлов, коридоров и тамбуров домов в жилом комплексе выполняется по европейскому дизайну. Современное оформление нежилых помещений невозможно сравнить с отделкой парадных в домах массовых серий.
Проектировщиками предусмотрен поочередный ввод в эксплуатацию 6 этапов застройки, строительство 4 детсадов и 2 общеобразовательных школ. На первых этажах будет развернута внутренняя коммерческая инфраструктура.
Добраться до комплекса можно от станции метро «Рыбацкое» пешком, на маршрутке или автобусе за 10 минут, а также на автомобиле. Рядом с метро располагается ж/д станция. Развязка КАД находится в 4 км.













