Обзор№ - 12800Стоимость 5 871 718
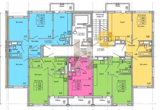
Название ЖК Сандэй Площадь, кв.м. 24.04 Жилая площадь 10.02 Площадь кухни, кв.м. 5.54 Комнат в квартире 1 Этаж 2 Этажность 7 Материал стен Экспериментальные материалы Ремонт Чистовая
Студия: 24,04 кв.м., 2 этаж в комплексе Сандэй, 4 очередь, корп.7.3, сдача: 4кв. , этажей: 7, адрес 2-я Комсомольская ул., , Застройщик: Группа Самолет.
Современный жилой комплекс расположен на юго-западе Санкт-Петербурга и включает в себя дома средней этажности. Дома строятся по передовой кирпично-монолитной технологии. У фасадов трёхцветная кладка кремового, желтого и коричневого цветов, цоколь облицован камнем коричневого цвета.
Доступ во двор осуществляется с помощью электронного ключа. Двор без машин. Для детей оборудован современный игровой развивающий комплекс.Для занятий спортом предусмотрена воркаут-зона с турниками, тренажерами и столом для настольного тенниса. Бесплатный Wi-Fi. Продуманное ландшафтное благоустройство с применением нетиповых кустарников, газонов, деревьев, клумб непрерывного цветения.
В доме оборудован теплый охраняемый подземный паркинг на 100 машин, доступ в который осуществляется по карте владельца или через автоматические ворота.
Дорога до центра Петербурга на автомобиле занимает 40 минут, до метро «Проспект Ветеранов» - 12 минут, до выезда на КАД – 10 минут. Трамвайная и автобусная остановки находятся рядом с ЖК. До ж/д станции «Сосновая Поляна» можно дойти пешком за 10 минут, откуда дорога до Балтийского вокзала займет ровно 22 минуты.
Для жителей ЖК имеются множество возможностейдля отдыха: рядом с домом расположен парк «Сосновая Поляна», в 3,5 км – Полежаевский парк, в 10 минутах езды – побережье Финского залива, до Петергофа можно добраться за 20 минут.
Инфраструктура района хорошо развита. В шаговой доступности расположены детский сады № 44, №7 и школа №242 с углубленным изучением физики и математики, подростково-молодежный клуб «Олимп» на базе которого работают 277 секций и студий. Всего в микрорайоне имеется 9 детский садов, 4 школы, лицей, интернат, 2 поликлиники, 2 вуза, магазины, ТРЦ.Расположение
Важно! На карте не всегда указано точное местоположение. Более точную информацию можно узнать у менеджера,
разместившего объект
Обзор№ - 12800
| Стоимость | 5 871 718 |
|---|---|
| Название ЖК | Сандэй |
| Площадь, кв.м. | 24.04 |
| Жилая площадь | 10.02 |
| Площадь кухни, кв.м. | 5.54 |
| Комнат в квартире | 1 |
| Этаж | 2 |
| Этажность | 7 |
| Материал стен | Экспериментальные материалы |
| Ремонт | Чистовая |
Студия: 24,04 кв.м., 2 этаж в комплексе Сандэй, 4 очередь, корп.7.3, сдача: 4кв. , этажей: 7, адрес 2-я Комсомольская ул., , Застройщик: Группа Самолет.
Современный жилой комплекс расположен на юго-западе Санкт-Петербурга и включает в себя дома средней этажности. Дома строятся по передовой кирпично-монолитной технологии. У фасадов трёхцветная кладка кремового, желтого и коричневого цветов, цоколь облицован камнем коричневого цвета.
Доступ во двор осуществляется с помощью электронного ключа. Двор без машин. Для детей оборудован современный игровой развивающий комплекс.Для занятий спортом предусмотрена воркаут-зона с турниками, тренажерами и столом для настольного тенниса. Бесплатный Wi-Fi. Продуманное ландшафтное благоустройство с применением нетиповых кустарников, газонов, деревьев, клумб непрерывного цветения.
В доме оборудован теплый охраняемый подземный паркинг на 100 машин, доступ в который осуществляется по карте владельца или через автоматические ворота.
Дорога до центра Петербурга на автомобиле занимает 40 минут, до метро «Проспект Ветеранов» - 12 минут, до выезда на КАД – 10 минут. Трамвайная и автобусная остановки находятся рядом с ЖК. До ж/д станции «Сосновая Поляна» можно дойти пешком за 10 минут, откуда дорога до Балтийского вокзала займет ровно 22 минуты.
Для жителей ЖК имеются множество возможностейдля отдыха: рядом с домом расположен парк «Сосновая Поляна», в 3,5 км – Полежаевский парк, в 10 минутах езды – побережье Финского залива, до Петергофа можно добраться за 20 минут.
Инфраструктура района хорошо развита. В шаговой доступности расположены детский сады № 44, №7 и школа №242 с углубленным изучением физики и математики, подростково-молодежный клуб «Олимп» на базе которого работают 277 секций и студий. Всего в микрорайоне имеется 9 детский садов, 4 школы, лицей, интернат, 2 поликлиники, 2 вуза, магазины, ТРЦ.













