Обзор№ - 11036Стоимость 10 265 372
Название ЖК IQ Гатчина Площадь, кв.м. 69.78 Жилая площадь 25.17 Площадь кухни, кв.м. 22.6 Комнат в квартире 2 Этаж 2 Этажность 9 Материал стен Панельный Ремонт Черновая отделка
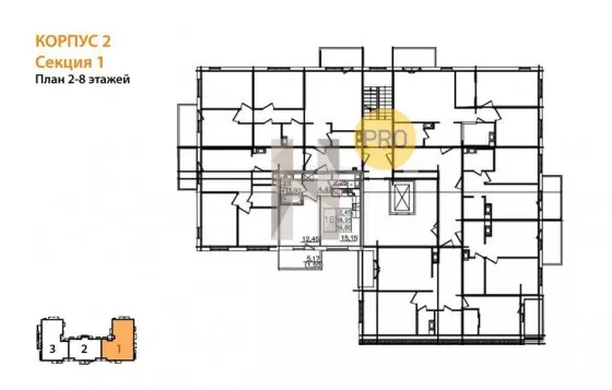
Квартира: 2 к 69,78 кв.м., 2 этаж в комплексе IQ Гатчина, 5 очередь, корп.2, сдача: 3кв. , этажей: 9, адрес Гатчина г., , Застройщик: Ленстройтрест.
Квартал находится на самом въезде в исторический пригород Санкт-Петербурга – город Гатчина и имеет хорошо развитую транспортную доступность. Над его градостроительной концепцией работало шведское архитектурное бюро Tovatt Architects & Planners во главе с Йоханесом Товаттом. Европейский подход к созданию комфортной городской среды нашел свое отражение в современном ярком квартале. Именно поэтому называют этот квартал – шведским.
Первая, вторая, третья очереди заселены. Дома четвертой очереди имеют переменную среднюю этажность- от 5 до 12 этажей и такие же яркие пиксельные мотивы на фасадах. Два корпуса уже заселяются.
В центре квартала уже построен и работает детский сад на 120 воспитанников, строится школа
Уютные, мощеные дворы шведского квартала закрыты от машин и посторонних. Заезд во двор возможен только для автомобилей экстренных и сервисных служб, либо для погрузки/выгрузки на короткий временной интервал. Диспетчер контролирует заезд и выезд с территории. Для машин организованы парковочные места за периметром квартала, а на первой очереди функционируют подземные паркинги с индивидуальными кладовыми и лифтами, ведущими на нужный этаж комплекса. Озеленением внутренней территории занимаются ландшафтные дизайнеры и специалисты управляющей компании. Во дворах высажено несколько тысяч растений – от многочисленных цветов и кустарников, то взрослых деревьев. Все они подобраны таким образом, чтобы радовать глаз жителей с ранней весны до поздней осени. Внутри квартала установлены дизайнерские фонари и удобные скамейки – здесь одинаково комфортно, как проводить время с книгой, так и наблюдать за ребенком, который играет на одной из детских площадок.
К проектированию своих кварталов застройщик привлекает европейских архитекторов и урбанистов. Лучшие практики мировой архитектуры ложатся в основу концепции жилых домов, создавая комфортную, соразмерную человеку, жилую среду.
Все дома имеют среднюю этажность и расположены таким образом, что их протяженность, конфигурация и высота, а также вся архитектурная композиция квартала, не образуют замкнутых, темных дворов.
Инфраструктуру продумывали еще на стадии проектирования: продуктовые магазины и кафе, аптеки и кабинеты семейных врачей, банк и книжный магазин, хозтовары и ремонт техники — вот далеко не полный перечень запланированных для удобства жителей организаций-арендаторов помещений.
Уже сейчас в квартале работает семейное кафе, магазины товаров для дома, салон красоты и многое другое. В 500 метрах от квартала находятся крупные строительные магазины, торгово-развлекательный центр Кубус и гипермаркет ОКей.
В ЖК, как и в любом европейском пригороде, главное – это комфорт и безопасность. За спокойствие жителей отвечает охранная служба управляющей компании. Администраторы территории регулярно совершают обход двора и поэтажный осмотр.
Вся территория квартала, места общего пользования, лифтовые холлы, а также спортивные и детские площадки, оборудованы видеокамерами системы безопасности. Всего в первой очереди ЖК размещено 55 видеокамер, сигналы с которых выводятся на круглосуточный диспетчерский пункт.
— Дворовые территории квартала закрыты от автомобилей и посторонних людей.
— Доступ во дворы осуществляется по электронному ключу жильца
— Архитектурная композиция квартала, а также протяженность, конфигурация и высота зданий не образуют замкнутых, темных дворов.
— Уличное освещение спроектировано так, чтобы во дворах и на улицах не оставалось «темных», не просматриваемых зон.
Исследования, проведенные застройщиком, подтвердили выводы зарубежных ученых о том, что безопасность людей в жилых кварталах зависит не только от охранников и видеокамер. «Встроенная» безопасность – грамотный подбор досуговых зон для людей разных предпочтений –позволяет жителям чувствовать себя на улицах более свободно.
Для активного отдыха в ЖК есть площадки для спортивных игр, уличные тренажеры, дорожки для катания на велосипедах или роликах. Все они спроектированы так, что не помешают движению пешеходов. Спортивный инвентарь при необходимости можно арендовать в Управляющей компании.
Регулярно в шведском квартале Клиентский сервис организовывает спортивные мероприятия: мастер-классы по роликам, увлекательные квесты на свежем воздухе, дружеские спортивные соревнования.
Для тех, кто устал от активного времяпрепровождения — пешеходный бульвар с ландшафтным дизайном, кафе и магазинчиками.
ЖК – это территория современной семьи. Во дворах квартала есть занятия для детей любого возраста. Игровые комплексы и развивающие конструкции разделяются по возрастным группам, чтобы и малыши, и дети постарше могли проводить время в подходящей компании.
Площадки для малышей включают в себя самые разнообразные игровые элементы и имеют антиударное покрытие. А закрытый от автомобилей двор позволяет детям вдоволь кататься на велосипеде или играть в мяч прямо в центре квартала.
Между домами первой и второй очереди находится детский сад, оснащенный современным оборудованием. Дизайн внутренних помещений выполнен по мотивам сказки «Малыш и Карлсон» шведской писательницы Астрид Линдгрен. Здесь есть уголок пожарной безопасности и безопасности дорожного движения с информационными стендами. Особого внимания заслуживают комната конструирования «Лего» с 3D-принтером, скалодром и соляная комната.
Строится школа на 825 мест.
На автомобиле
25 км до КАД
40 минут до Пулково
60 минут до Невского проспекта
На автобусе
№ 431- от метро «Московская»
№ 256- от метро «Проспект Ветеранов» до ост. ул. Орджоникидзе/ул. Ленсовета-№ К-18А, № К-100
На электричке
ж/д станция Татьянино в 3,2 км от квартала
40 минут до Балтийского вокзала
На маршрутном такси
От метро «Московская» №К18, №К18а, №К100Расположение
Важно! На карте не всегда указано точное местоположение. Более точную информацию можно узнать у менеджера,
разместившего объект
Обзор№ - 11036
| Стоимость | 10 265 372 |
|---|---|
| Название ЖК | IQ Гатчина |
| Площадь, кв.м. | 69.78 |
| Жилая площадь | 25.17 |
| Площадь кухни, кв.м. | 22.6 |
| Комнат в квартире | 2 |
| Этаж | 2 |
| Этажность | 9 |
| Материал стен | Панельный |
| Ремонт | Черновая отделка |
Квартира: 2 к 69,78 кв.м., 2 этаж в комплексе IQ Гатчина, 5 очередь, корп.2, сдача: 3кв. , этажей: 9, адрес Гатчина г., , Застройщик: Ленстройтрест.
Квартал находится на самом въезде в исторический пригород Санкт-Петербурга – город Гатчина и имеет хорошо развитую транспортную доступность. Над его градостроительной концепцией работало шведское архитектурное бюро Tovatt Architects & Planners во главе с Йоханесом Товаттом. Европейский подход к созданию комфортной городской среды нашел свое отражение в современном ярком квартале. Именно поэтому называют этот квартал – шведским.
Первая, вторая, третья очереди заселены. Дома четвертой очереди имеют переменную среднюю этажность- от 5 до 12 этажей и такие же яркие пиксельные мотивы на фасадах. Два корпуса уже заселяются.
В центре квартала уже построен и работает детский сад на 120 воспитанников, строится школа
Уютные, мощеные дворы шведского квартала закрыты от машин и посторонних. Заезд во двор возможен только для автомобилей экстренных и сервисных служб, либо для погрузки/выгрузки на короткий временной интервал. Диспетчер контролирует заезд и выезд с территории. Для машин организованы парковочные места за периметром квартала, а на первой очереди функционируют подземные паркинги с индивидуальными кладовыми и лифтами, ведущими на нужный этаж комплекса. Озеленением внутренней территории занимаются ландшафтные дизайнеры и специалисты управляющей компании. Во дворах высажено несколько тысяч растений – от многочисленных цветов и кустарников, то взрослых деревьев. Все они подобраны таким образом, чтобы радовать глаз жителей с ранней весны до поздней осени. Внутри квартала установлены дизайнерские фонари и удобные скамейки – здесь одинаково комфортно, как проводить время с книгой, так и наблюдать за ребенком, который играет на одной из детских площадок.
К проектированию своих кварталов застройщик привлекает европейских архитекторов и урбанистов. Лучшие практики мировой архитектуры ложатся в основу концепции жилых домов, создавая комфортную, соразмерную человеку, жилую среду.
Все дома имеют среднюю этажность и расположены таким образом, что их протяженность, конфигурация и высота, а также вся архитектурная композиция квартала, не образуют замкнутых, темных дворов.
Инфраструктуру продумывали еще на стадии проектирования: продуктовые магазины и кафе, аптеки и кабинеты семейных врачей, банк и книжный магазин, хозтовары и ремонт техники — вот далеко не полный перечень запланированных для удобства жителей организаций-арендаторов помещений.
Уже сейчас в квартале работает семейное кафе, магазины товаров для дома, салон красоты и многое другое. В 500 метрах от квартала находятся крупные строительные магазины, торгово-развлекательный центр Кубус и гипермаркет ОКей.
В ЖК, как и в любом европейском пригороде, главное – это комфорт и безопасность. За спокойствие жителей отвечает охранная служба управляющей компании. Администраторы территории регулярно совершают обход двора и поэтажный осмотр.
Вся территория квартала, места общего пользования, лифтовые холлы, а также спортивные и детские площадки, оборудованы видеокамерами системы безопасности. Всего в первой очереди ЖК размещено 55 видеокамер, сигналы с которых выводятся на круглосуточный диспетчерский пункт.
— Дворовые территории квартала закрыты от автомобилей и посторонних людей.
— Доступ во дворы осуществляется по электронному ключу жильца
— Архитектурная композиция квартала, а также протяженность, конфигурация и высота зданий не образуют замкнутых, темных дворов.
— Уличное освещение спроектировано так, чтобы во дворах и на улицах не оставалось «темных», не просматриваемых зон.
Исследования, проведенные застройщиком, подтвердили выводы зарубежных ученых о том, что безопасность людей в жилых кварталах зависит не только от охранников и видеокамер. «Встроенная» безопасность – грамотный подбор досуговых зон для людей разных предпочтений –позволяет жителям чувствовать себя на улицах более свободно.
Для активного отдыха в ЖК есть площадки для спортивных игр, уличные тренажеры, дорожки для катания на велосипедах или роликах. Все они спроектированы так, что не помешают движению пешеходов. Спортивный инвентарь при необходимости можно арендовать в Управляющей компании.
Регулярно в шведском квартале Клиентский сервис организовывает спортивные мероприятия: мастер-классы по роликам, увлекательные квесты на свежем воздухе, дружеские спортивные соревнования.
Для тех, кто устал от активного времяпрепровождения — пешеходный бульвар с ландшафтным дизайном, кафе и магазинчиками.
ЖК – это территория современной семьи. Во дворах квартала есть занятия для детей любого возраста. Игровые комплексы и развивающие конструкции разделяются по возрастным группам, чтобы и малыши, и дети постарше могли проводить время в подходящей компании.
Площадки для малышей включают в себя самые разнообразные игровые элементы и имеют антиударное покрытие. А закрытый от автомобилей двор позволяет детям вдоволь кататься на велосипеде или играть в мяч прямо в центре квартала.
Между домами первой и второй очереди находится детский сад, оснащенный современным оборудованием. Дизайн внутренних помещений выполнен по мотивам сказки «Малыш и Карлсон» шведской писательницы Астрид Линдгрен. Здесь есть уголок пожарной безопасности и безопасности дорожного движения с информационными стендами. Особого внимания заслуживают комната конструирования «Лего» с 3D-принтером, скалодром и соляная комната.
Строится школа на 825 мест.
На автомобиле
25 км до КАД
40 минут до Пулково
60 минут до Невского проспекта
На автобусе
№ 431- от метро «Московская»
№ 256- от метро «Проспект Ветеранов» до ост. ул. Орджоникидзе/ул. Ленсовета-№ К-18А, № К-100
На электричке
ж/д станция Татьянино в 3,2 км от квартала
40 минут до Балтийского вокзала
На маршрутном такси
От метро «Московская» №К18, №К18а, №К100



















